Где располагаются блоки предохранителей и реле на КИА Спортейдж 3-го поколения 2012–2013 годов
Кроссовер KIA Sportage 3 поколения был представлен в 2010 году на автосалоне в Женеве. Он производился на корейском, словацком и российском заводах компании. В 2012 году занял 1 место в рейтинге JD Power, получив высшие оценки во всех категориях.
Выиграл награду People’s Wheels Award 2013 для внедорожников и городских автомобилей. После рестайлинга в 2014 году модель оставалась на конвейере до 2016 года.
Реле-выключатели и предохранители на КИА Спортейдж 3 смонтированы в монтажных коробках. Их размещают в нескольких местах на теле.
В салоне
Поиск салонного инсталлятора состоит из нескольких этапов:
- Сядьте в машину на место водителя.
- Осмотрите приборную панель слева от руля.
- Зацепите паз на пластиковой крышке под модулем переключателя дальнего и ближнего света.
- Вытяните это на вас.
.jpg)
В моторном отсеке
Основной бункер в моторном отсеке расположен у левого борта кроссовера. Для доступа к плате необходимо отжать фиксирующие защелки и снять крышку модуля.

Блоки под капотом
В моторном отсеке главный выключатель установлен на клемме аккумуляторной батареи. Рядом с воздуховодом имеется дополнительная коробка с плавкими вставками для автомобиля с дизельным двигателем.
.jpg)
Схема блоков предохранителей и реле с расшифровкой на KIA Sportage 3
На панели салонного ящика с перемычками расположены элементы схемы защиты следующих электроприборов:
- магнитолы;
- наружные зеркала заднего вида с электроприводом складывания;
- электрические стеклоподъемники;
- кондиционер;
- регулировка водительского сиденья;
- зажигалка;
- датчики парковки;
- люк двигателя;
- дворник у заднего окна;
- поворотники;
- автоматический селектор передач;
- омыватели фар;
- потолочный свет в кабине;
- датчик дождя;
- стоп-сигналы;
- тревога;
- противотуманные огни;
- обогрев водительского сиденья;
- усилитель руля;
- генератор;
- навигация;
- запуск;
- корректор фар;
- круиз-контроль;
- Блок управления с полным приводом;
- камеры заднего вида;
- розетки в салоне;
- центральный замок и тд
На обратной стороне платы находятся реле:
- замок багажника;
- будильники;
- электрические стеклоподъемники;
- дверные замки.
На основной плате под капотом установлены плавкие вставки, подключенные к нескольким электроприборам:
- вентилятор печки;
- ЕВРО;
- бензонасос;
- размеры;
- подогрев стекла;
- АБС;
- ЭСП;
- режим работы стеклоочистителей;
- датчик кислорода;
- конденсатор;
- кондиционер;
- катушка зажигания для автомобилей, работающих на бензине;
- фонари заднего хода и так далее
.jpg)
На дополнительной плате у дизельных кроссоверов есть реле, связанные с подогревом топлива, свечами накаливания и фильтром.
.jpg)
Предохранитель прикуривателя
В салонном ящике есть 2 предохранителя прикуривателя:
- №25 на 15А;
- №32 на 20 А.
Предохранитель вентилятора
В моторном отсеке в гнезде с маркировкой FL6 находится вставка для крыльчатки теплового насоса.
Предохранители вентилятора охлаждения расположены в нескольких ячейках в одном модуле:
- FL9 на 40 А;
- F23 на 15 А;
- F24 и F28 для 10 А.
Предохранитель АКПП и АБС
Сцепление АКПП установлено в салонной коробке в гнезде №8. Его номинал 7,5 А. Смазочные вкладыши на 40 для АБС находятся в ячейках FL3 и FL5.
Распиновка предохранителей на КИА Спортейдж 3
В технической документации на КИА Спортейдж 3 гнезда для английской булавки нет. Однако владельцы кроссоверов по-своему расставили ставки.
Для авто с бензиновым двигателем
Для кроссоверов с бензиновым двигателем таблица с назначением и расшифровкой перемычек выглядит так:
.jpg)
Для автомобилей с дизельным двигателем
Для автомобилей с дизельным двигателем обозначение плавких вставок приведено в таблице:
.jpg)
Процесс замены предохранителей и снятия монтажного блока
Микропредохранители используются для замены Киа Спортейдж 3.
Если они недоступны, вы можете временно использовать замену типа Mini. Процесс замены в обоих блоках одинаков:
- Выключите зажигание, возьмите пинцет из крышки моторного отсека. Выдергивать предохранители с его помощью удобнее, чем вручную.
- откройте крышку распределительной коробки.
- Вытащите сгоревший свитер пинцетом.
- Вставьте новую часть.
Для замены предохранителей FL1-FL9 в моторном отсеке необходимо:
- Отверните гайку в нижней левой части монтажной коробки ключом «на 10.
- Подденьте блок предохранителей отверткой и вытащите его.
Для разборки блоков нужно:
- рожковый ключ: 10 мм;
- шлицевая отвертка.
Под капотом
К МБ в подкапотном пространстве подключено множество отдельных проводов, и обычному автолюбителю очень легко в них запутаться.
Для замены обратитесь к автоэлектрику или на официальную СТО.
Монтажный блок
Найти этот агрегат в салоне можно, заглянув под декоративный щиток приборной панели. Чтобы получить доступ к предохранителям, возьмитесь за ручку монтажного блока и с некоторым усилием потяните его на себя. При его вскрытии можно увидеть большое количество предохранителей и реле, схема которых представлена ниже.

Чтобы понять, какой предохранитель за что отвечает, следует обратить внимание на таблицу, в которой сведены основные элементы.
| F1 | Управление звуковой системой и видеонавигацией. |
| F3 | Управление стеклоподъемниками. |
| F7 | Электроусилитель руля. |
| F17 | Противотуманные огни. |
| F16 | Активировать/деактивировать будильник. |
| F19 | Начальная работа. |
| F22 | Производительность подушки безопасности. |
| Ф36 | Кондиционер. |
Несложно догадаться, что большинство предохранителей отвечают за работоспособность систем, обеспечивающих комфортное пребывание в салоне и управление автомобилем. Это может также включать проверку освещения внутри автомобиля, открытие и закрытие люка, блокировку дверных замков и знание наличия предохранителя прикуривателя.
В блоке есть в том числе и предохранители, которые отвечают за работу звуковых систем, ресиверов, розеток.
Также в этом блоке есть элементы, обеспечивающие надежную работу дворников. Кроме того, можно заметить обогрев заднего стекла, а также сидений, пассажирского и водительского. Сюда же относится и производительность стеклоомывателя.
Таким образом, блоки предохранителей и реле выполняют ряд функций. Без рассматриваемых элементов невозможно было бы организовать безопасную работу такого количества электрических цепей и систем, и автомобиль постоянно выходил из строя.
Клемма предохранителя аккумулятора
Назначение предохранителей в щитке приборов (2011-2015 RHD)




Назначение предохранителей в моторном отсеке (2011-2015 RHD)


Панель основных предохранителей в моторном отсеке (EMS Box) (2011-2015 RHD)

Клемма предохранителя аккумулятора
Замена перегоревших предохранителей вручную
В KIA Sportage 3 используются низкопрофильные ножевые предохранители в прозрачном пластиковом корпусе.
Они окрашены в разные цвета в зависимости от номинала.
Перед заменой перегоревшей перемычки нужно выяснить и устранить причину ошибки:
- изолировать только части проводов;
- отключать от розеток мощную технику;
- протрите плату, залитую водой;
- протянуть и зачистить контакты;
- измерить напряжение в бортовой сети;
- проверить соблюдение схемы оценки гарантий;
- удалить проволоку, гвозди, монеты, которые иногда заменяют калиброванными вставками в случае крайней необходимости.
Затем необходимо предотвратить поражение водителя электрическим током:
- Паркер перешел дорогу по ровной дороге.
- Наденьте на ручку.
- Отключите электроприборы.
- Выньте ключ из замка зажигания.
- Отсоедините клеммы от аккумулятора.
Затем можно переходить к замене поврежденной перемычки:
- откройте сборочный модуль.
- Найдите правильную дорожку по схеме.
- Визуально подтвердите неисправность или прозвоните тестером.
- Удалите сгоревшую часть с помощью диэлектрических плоскогубцев.
- Вставьте новый соответствующего номинала.
- Запустить двигатель.
- Попробуйте неисправное устройство.
- Соберите монтажные коробки, если ремонт прошел успешно.
Необходимо регулярно устраивать ревизию резервных предохранителей. Если какие-либо перемычки отсутствуют, приобретите их в специализированном магазине.
Основной блок
Основной блок расположен под крышкой капота. Найти его не составит труда. Этот блок содержит большое количество предохранителей и это видно на схеме ниже.

Ниже также представлена таблица с указанием основных предохранителей, отвечающих за выполнение важнейших функций автомобиля.

| FL1 | Электроусилитель руля. |
| FL6 | Включить/выключить сигнал, сирену. |
| FL9 | Вентилятор вкл/выкл. |
| FL10 | Обогрев стекол по бокам дверей. |
| FL15 | Обогрев лобового стекла. |
| FL16 | Включение/выключение стоп-сигнала. |
| FL18 | Работа конденсатора и змеевика. |
| ФЛ22 | Организация топливного насоса. |
| ФЛ27 | Кондиционер. |
| R1 | Реле топливного насоса. |
| R12 | Реле звукового сигнала. |
В основном работа этих предохранителей напрямую связана с включением двигателя автомобиля, а также работоспособностью внешних систем, к которым относятся обогрев стекол, кондиционер и звуковые сигналы. Также здесь можно найти предохранители и реле, отвечающие за включение/выключение дворников, поворотников, стартера.
Обозначения каждого предохранителя нанесены на крышке блока, и с помощью схемы можно узнать, где находится нужный элемент и за что он отвечает. Кроме того, каждый элемент окрашен в определенный цвет, что значительно облегчает поиск при необходимости, например, замены.
Блок под капотом

Нижняя диаграмма для дизеля
Чтобы увидеть, где находится блок предохранителей Kia Sportage 3 поколения в моторном отсеке, просто откройте капот и посмотрите на левое крыло. Блок спрятан в защитный пластиковый корпус.

Кроме предохранителей в нем используются следующие реле:
- 1P — предупреждение об экстренном торможении;
- 2Р — датчик дождя на лобовом стекле;
- 3Р – первая скорость работы стеклоочистителей;
- 4P — номер банкомата;
- 5Р — от образования наледи на лобовом стекле;
- 6П, 11П — соответственно увеличенная и уменьшенная скорость вентилятора охлаждения;
- 7П, 8П — левое и правое дополнительное освещение при входе в поворот соответственно;
- 9Р — двигатель вентилятора отопительного комплекса;
- 10Р — цепь подачи сигнала;
- 12Р — стартер;
- 13Р — сирена заводской сигнализации;
- 14Р — дворники заднего стекла;
- 15П — насос подачи топлива;
- 16Р — кондиционер;
- 17Р — самое главное.
Ниже представлен список предохранителей моторного отсека Киа Спортейдж третьего поколения:
- 1 — программный комплекс ЭУР (80А);
- 2, 7 — коробка проводов в приборной панели (60А);
- 3, 5 — ЭСП, АБС (40А);
- 4 — ЭМС (40А);
- 6, 14 — сирена охранной сигнализации (40, 15А);
- 8 — IPS, реле электростеклоподъёмника (60А);
- 9 — реле 1 и 2 скорости вращения вентилятора радиатора (40А);
- 10 — от запотевания заднего стекла (40А);
- 11 — комплекс очистки фар (30А);

- 12, 13 — замок зажигания или ВЗП при использовании электронного ключа управления (40А);
- 15 — от образования наледи на лобовом стекле (15А);
- 16 — стоп-сигнал, ИКМ, центральный замок и система зажигания (10А);
- 17 — ЭБУ с полным приводом (20А);
- 18 — конденсатор, катушки зажигания (20А);
- 19 — ПКМ, ЕСМ, ДМРВ, Пакет ПО АКПП (7,5А);
- 20 — ICM, ESP, ABS, свечи зажигания, подогрев элемента топливного фильтра, контроль попадания воды в элемент топливного фильтра (7,5А);
- 21 — TCM, селектор автоматической коробки передач (7,5А).

В отдельной области находятся предохранители блока EMS Киа Спортейдж 3:
- 1Р — ЭБУ силового агрегата (30А);
- 2П — ПКМ (15А);
- 3Р — кондиционер (10А);
- 4Р — автоматическая блокировка запуска ДВС Киа Спортейдж 3, клапаны опорожнения фильтрующего элемента, подачи масла, регулировки впускного коллектора, датчики положения распредвала и коленвала для моделей Спортейдж 3 с бензиновыми силовыми агрегатами, а для дизельных модификаций — 1 , 2 скорости вентилятора охлаждения, VGT, EGR, RTS, ER (10A);

- 5Р — конденсатор и катушки зажигания для бензиновых модификаций, а для дизельных — ЭБУ силового агрегата (20А);
- 6П — насос подачи топлива (15А);
- 7Р — впрыск и кондиционер на моделях Киа Спортейдж 3 с бензиновыми ДВС, а с дизельными — реле топливного насоса, клапаны давления дизеля, главный регулятор давления, автоматизированная система иммобилайзера двигателя (15А);
- 8Р — для двигателей, работающих на бензине, кондиционере и впрыске, а для дизельных двигателей внутреннего сгорания — лямбда-зонд, датчик положения коленчатого вала, реле кондиционера (10А);
- 9P — стоп-сигнал только на дизельном Sportage 3 (10А).

Если возникает необходимость смены защитных элементов, следует учитывать их тип. Kia Sportage 3 использует предохранители Micro.

Блок с предохранителями в салоне
В салоне Киа Спортейдж 3 предохранители и реле расположены внизу панели приборов, слева от руля.

Предохранители (лицевая часть)


| F1 | 20 | Аудио/видео и навигация, конвертер ISG, звуковая система |
| F2 | 7,5 | Радиочастотный приемник |
| F3 | 20 | Блок управления электростеклоподъемниками со стороны водителя |
| F4 | 20 | Бронировать |
| F5 | 10 | Универсальный тестовый разъем, блок управления сиреной, разъем для передачи данных, парковочный зуммер с камерой заднего вида, выключатель питания наружного зеркала, блок наклона |
| F6 | 15 | Переключатель управления люком |
| F7 | 25 | Усилитель руля |
| F8 | 7,5 | Избирательный рычаг ПСР |
| F9 | 10 | Угловые светильники |
| F10 | 15 | Бронировать |
| F11 | 25 | Электрические стеклоподъемники правой двери |
| F12 | 25 | Электрические стеклоподъемники левой двери |
| F13 | 10 | Лампы салона и выключатель освещения |
| F14 | 10 | Блок управления дверными замками и зажиганием, держатель брелока, кнопка запуска и остановки |
| F15 | 15 | Замок задней двери |
| F16 | 15 | Тревога |
| F17 | 10 | Задние противотуманные фары |
| F18 | 25 | Замки боковых дверей и замок зажигания (блокировка |
| F19 | 10 | Начиная |
| F20 | 10 | Стоп-сигналы, электроусилитель руля, автоматическое освещение селектора передач, система помощи при парковке, блок управления полным приводом, регулировка дальности света, IPS |
| F21 | 20 | Моторный отсек МБ |
| F22 | 10 | Сигнальная лампа подушки безопасности |
| F23 | 10 | Дверные замки и замок зажигания (блокировка |
| F24 | 25 | Стеклоочиститель |
| F25 | 15 | Выход правый передний |
| F26 | 10 | Блок управления дверными замками и выключателем зажигания (замком), темно-синий |
| F27 | 10 | Конвертер ISG, аудиосистема, усилитель, боковые зеркала с электроприводом, управление крышей, аудио/видео и навигационный блок |
| F28 | 10 | Комбинация приборов, генератор, блок климат-контроля, блок аудио/видео и навигации, переключатель системы помощи при парковке, переключатель обогрева сиденья водителя и пассажира, темно-синий, модуль контроля давления в шинах, лампа PAB и SBR |
| F29 | 10 | Блок управления дверными замками и зажиганием, блок управления IPS, Navy, очистителем фар |
| Ф30 | 15 | Стеклоочиститель для задней двери |
| F31 | 10 | Климат-контроль, ионизатор, датчик дождя, управление люком, электрозеркала, дизельный агрегат, подкапотное МБ (реле 1 — реле вентилятора) |
| F32 | 20 | Левая передняя розетка, задняя розетка, левый передний прикуриватель |
| F33 | 15 | ЭБУ системы SRS |
| F34 | 15 | Выключатель обогрева сиденья водителя/пассажира |
| Ф35 | 15 | Переключатель левого/правого заднего сиденья с подогревом |
| Ф36 | 7,5 | ЭБУ кондиционера |
| F37 | 7,5 | Электрические зеркала, ЭБУ кондиционера, PCM |
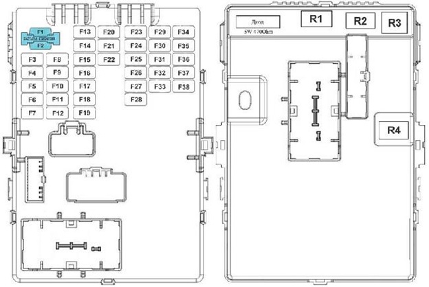
Реле (оборотная часть)


| R1 | Реле крышки багажника |
| R2 | Реле охранной сигнализации |
| R3 | Реле блокировки/отпирания двери |
| R4 | Реле электрического стеклоподъемника |
- https://predohranitel.info/paneli-predohranitelej-na-kia-sportage-3-predohraniteli-prikurivatelya-konditsionera-ventilyatora-polnogo-privoda-kruiz-kontrolya-zadnego-vida-motorchika-omyvatelya-zamka-bagazhnika-blizhnego-sveta-pe/
- https://AvtoMonitor.ru/predohraniteli-kia-sportage-3.html
- https://zapchasti.expert/predoxraniteli/predoxraniteli-kia-sportage-3.html
- https://fuse-box.ru/predohraniteli-i-rele-kia-sportage-sl-2011-2016/
- https://autonissancar.ru/kia/sportage/sportage-3/predohraniteli-kia-sportage-3